这座现代风格的别墅散发着简约自然的小清新气息。从外观上看,简洁的线条勾勒出建筑的轮廓,白色的外墙在阳光下闪耀着纯净的光泽,搭配着几扇大大的落地窗,通透而明亮。
走进庭院,精心修剪的绿植错落有致,几株淡雅的花卉随风摇曳,为整个空间增添了一抹生机与活力。别墅内部延续了简约的风格,开阔的客厅里,浅灰色的沙发柔软舒适,没有过多繁复的装饰,一块简单的几何图案地毯奠定了清新的基调。开放式的厨房采用白色的橱柜与木质台面,自然而质朴。
卧室的布置温馨而素雅,淡蓝色的床品如同天空般宁静,木质的床头板传递着自然的温度。阳光透过白色的窗帘洒在床上,营造出一种慵懒惬意的氛围。每一处角落都彰显着主人对简约自然生活的追求,这座别墅宛如现代都市中的宁静小筑。
对于一直在快节奏中忙碌的人来说,他们会更加向往简约清新的生活,崇尚自然,喜欢享受那种简约之中的美好与宁静。现代风格的别墅就喜欢以简洁的造型和线条塑造鲜明的社区表情,能让人抛开冗长繁琐的忙碌,去体现简洁的美好,简单的快乐。

在这个几何型的别墅里,充斥着设计师满满的艺术气息和设计感。文化石的外墙将石材感的艺术性和内涵展现无遗,有一种回归自然的文化理念;金属元素的横线条的护栏和被木质的横线条装饰的车库,凝练硬朗,起到了很好的艺术装饰的效果。别墅整体给人一种简约自然的小清新风。

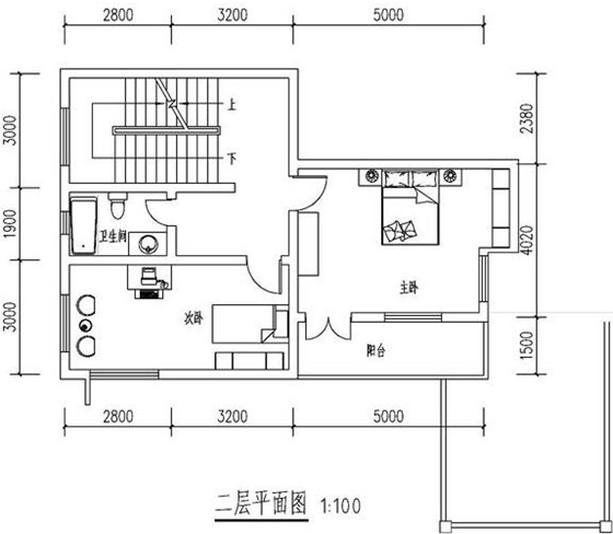
室内布局简单轻松,舒适自然。一层为公共活动的用间,室外有开放式的车库,室内是客厅、厨房、餐厅、卫生间和工具间;二层是休息空间,有一主卧、一次卧,主卧室有阳台,如果喜欢养花花草草,还可以在阳台上摆放一些盆栽绿植,把家装扮的更加清新自然。

简约自然又小清新的现代别墅,你喜欢吗?