洛阳洛南新区雅安新城:探索其结构设计背后的奥秘
创始人
2024-12-02 17:03:16
0

洛阳洛南新区的雅安新城结构设计独具匠心。整体布局以功能分区明确为特色,道路网络如棋盘般纵横交错,构建起高效的交通体系,确保区内交通流畅便捷。核心商业区规划在交通枢纽附近,吸引人气与商机。居住区域分布合理,配套设施齐全,从教育资源到医疗服务一应俱全。绿化景观呈点、线、面相结合,公园、绿带分布于各处,为居民提供休闲空间的同时也改善了城市生态。公共设施围绕着便民的理念布局,城市的天际线高低错落有致,展现出现代化新城的蓬勃生机与活力。


        1 工程概况

        雅安新城为洛阳洛南新区第一家五星级宾馆。其建筑面积为33 248m2 , 其功能为宾馆客房及其附属设施, 地下一层, 地上二十三层, 总高度79. 60m。建筑独特, 平面布局在标准层两端为圆弧形, 屋顶采用皇冠型造型。效果如图1 所示。(参考《建筑中文网》

       

        图1 雅安新城效果图

        洛阳基本风压值为0. 45kN/ m2 ( 100 年) , 地面粗糙度为B 类; 基本雪压值为0. 35kN/ m2 , 抗震设防烈度为7 度第一组, 设计基本地震加速度值为0. 10g 。建筑场地为Ò 类。基础采用筏板基础。结构形式采用带转换层的高层建筑结构, 转换层设在4 层楼面, 受建筑功能的限制, 转换层以下为框架- 剪力墙结构, 转换层以上为剪力墙结构, 抗震等级六层以上为三级; 六层及六层以下剪力墙及框支柱为一级; 框架为二级。为满足建筑功能和造型要求, 结构必须处理好以下几个难题:一是转换层结构转换形式的选择及剪力墙如何布置; 二是如何解决建筑层高与结构梁高的矛盾; 三是如何实现建筑屋顶造型。

        2 结构方案与结构布置

        2. 1 转换结构选型与布置

        带转换层高层建筑结构有其自身的结构弱点和缺陷, 因此5建筑抗震设计规范6 ( GB50011 -2001) 和5高层建筑混凝土结构技术规程6 ( JGJ3-2002) 对其作出了严格的规定。由于总体结构竖向传力构件的不连续, 造成结构上部荷载不能直接传给下部的对应构件, 而是通过转换结构的内力重分配, 再向下传递。因此, 转换构件相当重要而且受力比较复杂, 必须保证转换结构可靠有效的工作。常见的结构转换构件有梁、斜撑、箱形结构、空腹桁架、厚板等等, 其中梁式转换受力明确, 传力简洁, 计算模型简单, 计算软件比较成熟。因此本工程设计选用梁式转换, 并采用适当构造措施, 加强整体性, 以符合刚性楼板假定。

        由于转换层上下结构形式不同, 使得总体结构侧向刚度在转换层上下形成差异, 当转换层上、下楼层的结构侧向刚度相差较大时, 会导致转换层上、下部结构构件内力突变, 促使部分构件提前破坏。因此在设计时要严格控制转换层上、下楼层的结构侧向刚度比, 以避免结构刚度在转换层处形成突变。为此, 一方面应保证下部刚度的大小, 保证落地剪力墙的数量, 适当增加底部墙肢数量, 以加强底部刚度; 另一方面应尽量减小上部刚度, 加大上部剪力墙的间距, 减小墙肢长度和数量, 调整转换层上、下楼层的结构侧向刚度, 使其变化均匀, 平缓过渡, 尽量接近。

        在我公司进行施工图设计前已有上海某甲级设计院完成初步设计工作。初步设计时标准层剪力墙布置较多, 转换层混凝土C45, 框支梁截面最大为700 mm@ 2 600 mm, 框支柱截面为1 200mm @ 1 800mm~ 1 200mm @ 1 400mm。在施工图设计中按上文所述的设计理念进行了适当优化, 减少了上部剪力墙的布置, 降低了框支层的截面尺寸, 同时也满足规范要求。也更好的实现了建筑功能要求。

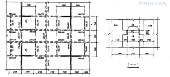
        转换层结构布置如图2, 标准层结构布置如图3 所示, 各主要构件混凝土强度等级和截面尺寸调整如下: 混凝土C45, 框支柱截面1 350mm @ 1 350mm~ 1 000mm @ 1 000mm, 框支梁截面最大为750 mm @ 2 000mm, 转换层下剪力墙厚350mm, 转换层上剪力墙厚200mm~ 240mm。

       

        图2 转换层结构布置图

        通过以上剪力墙的设置即满足了结构刚度的要求又满足了五星级宾馆复杂的建筑功能要求, 创造出了下部三层的底部大空间( 柱距为8. 4m@ 7. 2m) , 上部剪力墙完全与客房建筑隔墙重合而不影响建筑功能实现。

       

        图3 标准层结构布置图

        2. 2 建筑层高的实现

        因本工程为五星级宾馆, 建筑在功能使用要求上, 走廊吊顶净高要不小于2. 4m, 公用专业还有集中空调、通风排烟风管、消防喷淋、电缆桥架等一系列管道从走廊通过。

        建筑为实现立面造型要求, 将转换层以上标准层层高定为3. 2m。如增大层高将影响建筑立面效果, 并且增加建设投资。因此最终决定在结构设计时采取处理措施以达到各专业对结构设计要求。

        为尽量降低管线所占空间, 在施工图设计时通过与公用专业密切配合, 将各种管线分层分列交错排放。最终确定结构在走廊部分梁高最大仅能做到350mm。如采用常规方法设计必须在走廊两侧设置竖向承力构件, 否则将无法满足净高要求。经反复计算及论证, 最终设计中采用竖向承力构件( 剪力墙) 向走廊方向延伸至管道井处, 框架梁在管道井内做加腋处理, 此位置梁总高度为800mm, 走廊上方梁高为350mm, 走廊两侧次梁支撑在框架梁加腋部分。如图4 所示。走廊部分楼板适当加大板厚及配筋, 以提高平面上下两部分连接刚度, 增强抗震性能。按此种方案处理后在走廊部分净高为2. 4m, 达到了建筑层高、设备管线及结构安全的和谐统一。

       

        图4 标准层局部梁布置图

        2. 3 建筑屋顶造型设计

        本工程屋顶设计为一独特的/ 皇冠0 造型, 结构设计的主要难点是: 高度大, 建筑屋面高度为79m, 在屋面上竖立高度约为10m 高的构架的情况下, 如何保证其在风荷载作用下的稳定性。造型复杂, 建筑造型为空间三维造型, 如何用简单可靠的方案来实现建筑师的设计意图。

        结构选型: 由于建筑造型为空间三维造型, 如采用现浇混凝土结构则模板制作难度大, 混凝土浇筑很难保证质量, 并且砼结构自重大, 抗震不利。而钢结构具有强度高, 自重小, 受力明确, 且构件制作和安装较为方便的优点。因此经反复论证最后决定采用钢结构做骨架局部配合装饰设计的方案。

        结构布置: 如仅在外侧布置钢构架则由于单榀框架刚度小且风荷载很大不能满足变形要求。因此本设计方案为沿建筑物外围结合建筑造型设置钢框架, 在内侧亦设置钢框架, 内外两榀框架之间用连系梁连接, 使整个构架具有足够的刚度以抵抗风荷载和地震作用。结构布置平面如图5 所示。并且由于两榀框架相连在屋面上形成了一个自然的走廊,有利于人们沿整个走廊散步观光, 达到了美观与实用的和谐统一。

       

        图5 屋顶造型结构布置平面

        构件设计: 由于结构布置合理每根构件的实际受力很小, 构件的截面尺寸取决于立面造型的要求。此种情况下如采用焊接H 型钢或国标H 型钢则不太经济, 并且由于H 型钢截面较大很难在空中进行对接以满足建筑三维造型要求。因此本次设计钢构件( 除柱外) 均采用国标角钢组合截面。其优点是用料省, 安装方便。并可根据现场实际情况调整截面几何形状以满足建筑造型要求。

        3 结构计算与设计优化

        整体结构计算分析采用中国建筑科学研究院编制的多层及高层建筑结构空间有限元分析软件SATWE 进行整体分析计算。按总刚分析法, 考虑扭转耦连、偶然偏心、双向地震计算。计算结果略。

        计算分析表明:

        第一振型处于合理范围说明结构刚度适中; ¦ 刚重比满足规范要求, 说明结构侧向刚度能满足结构稳定要求;

        底部剪力墙承担倾覆力矩大于90%说明底部落地剪力墙数量合适, 主要水平力均由剪力墙承担, 符合规范及设计意图;

        转换层上部与下部结构的等效侧向刚度比均满足规范要求, 表明转换层过渡平稳, 说明结构竖向刚度布置匀称, 刚度变化适度;

        结构位移均符合规范要求, 说明结构整体刚度较好, 能满足抗侧力要求; 结构位移比均在规范限值以内, 说明结构扭转效应较小, 平面布置较规则合理, 质心与刚心吻合较好。

        在施工图设计阶段通过精心设计, 认真分析, 做好概念设计, 达到了结构布局合理, 安全可靠, 节约造价( 主体结构含钢量仅为62kg/ m2) 的目的。施工图设计顺利通过河南省施工图审查中心的审查, 目前主体结构完成施工, 正在进行后期装修。整个施工图设计满足了建筑功能要求, 获得了参建各方的一致好评。

        4 结语

        对于复杂结构体系, 必须认真做好概念设计工作, 分析总结结构特点, 选择合理的结构体系及结构方案, 作出总体结构布置。

        整体结构计算结果应当是对总体概念设计的量化和验证, 因此应认真分析计算结果从中找出不尽合理的部分, 来完善总体结构布置, 达到优化设计的目的。

原文网址:http://www.pipcn.com/research/201304/15221.htm

相关内容

热门资讯

免疫疾病医学转化创新联盟正式启... 01 以国家级医学转化新范式服务“健康中国”战略,贡献全球免疫治理新方案 为全面贯彻“健康中国203...
雾隐星河,私藏黄山寨的山水星河 雾隐星河民宿 寻一方自然逸趣 雾隐星河 坐落于庐江县罗河镇 四周群山环绕 翠林掩映,碧波荡漾 抵...
龙江版“迪士尼”在路上|“神洲... 提及动画与文旅的深度融合,迪士尼的成功范式早已深入人心:它将经典IP具象为实景体验,以多元形态激活文...
一位马里青年的中非友谊长跑(环... 卡尔(右三)陪同湖南省专业技术团队到马里锡加索综合工业园考察。 卡尔在湖南省长沙市参加座谈会时作分...
走5公里和跑5公里,到底哪个更... 在追求健康体态的道路上,5公里似乎是一个神奇的距离。它既不会让人望而生畏,又能带来实实在在的锻炼效果...
32岁程序员周末在家晕倒后猝死... 极目新闻记者 丁伟 近日,一则32岁程序员猝死的消息引发热议。据红星新闻,2025年11月29日(周...
【科普】肠癌多半是拖出来的!出... 肠癌 通常发现时已是中晚期 它的早癌五年生存高达90%以上 晚期却只有13%左右 很多人并未意识到 ...