《农村5 - 7万盖房小户型设计图纸推荐》
在农村,用5 - 7万盖房是不少家庭的选择。小户型的设计既能满足基本居住需求,又能有效控制成本。
首先推荐的是经典的长条形户型。整体布局为一进式,进门是一个小客厅,虽然面积不大,但足以放置简单的沙发和茶几。客厅一侧是一间卧室,卧室带有小窗户,保证采光通风。厨房位于房屋的另一侧,采用紧凑的L型设计,灶台、橱柜合理布局,节省空间。卫生间则在厨房旁边,设计成干湿分离,提高使用效率。
还有一种方形小户型设计。中间是一个正方形的小庭院,庭院四周分布着房间。正对着庭院的是客厅,客厅连接着一间较小的卧室。庭院的一侧是厨房兼餐厅,餐桌可设计成可折叠的,节省空间。另一侧是一间稍大的卧室,方便家庭人口较多时居住。这种设计在有限的预算内,充分利用空间,又能营造出温馨的乡村住宅氛围。
回农村建房的人越来越多,很多朋友想在农村5-7万盖一个房子,这样用作养老房或者偶尔回去的时候也能舒适的居住,但是现在有这样的房子吗?5-7万对于很多人来说可能就是一个地基的费用,但是,用不同的方法,5-7万建房也是有可能的 ,当然必须得满足这些条件。

1、宅基地
首先你得拥有自己的宅基地,这样才算是合法建房。如果没有宅基地,在建房前还需要购买宅基地,那7万块是远远不够的。
2、面积大小
由于基地的限定,5-7万的房子只能定在一层的小平房了,面积大概也就是在50平方米内,而且套间的形式就不用想了,最多也就两个房间,用作老人房养老还是不错的,2位老人简单的一起生活还是足够了。
3、建房材料
常见的农村建房大多都是砖混结构,但是现在除了常见的红砖,还有很多其他新型材料,比如现在的泡沫建房、活动板房,装配式房等。
4、人工
现在建房最贵的可以说就是人工了,所以找到适合的施工队是非常重要的,有很多朋友请的是熟悉的亲朋好友来帮工,有些还能自己建房,这样就能省小不少钱了。

总的来说随着各建房材料及人工的上涨,农村5-7万盖房还是有些困难的,但是也还是有可能的,下面给大家推荐几款小户型设计图纸。
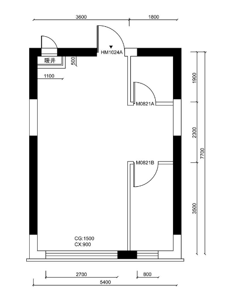
小户型设计图纸款式一:

小户型设计图纸款式二:

小户型设计图纸款式三:
